
本頁主要介紹LYM-0.5電流互感器的作用、變比、準確級、接線圖、價格、型號及相關參數,LYM-0.5電流互感器30000-5000/5可以接受非標訂制。
1.一次電流大
2.防污等級高
3.安裝靈活等
LYM-0.5電流互感器為低壓大電流的互感器,對銅的選擇和使用量非常的考究。他主要是母線型、戶內型低壓電流互感器,供額定頻率為50HZ,電壓為0.66KV及以下的交流線路中測量電流、電能及繼電保護之用。
LYM-0.5電流互感器的鐵心由長條形硅鋼片迭成、二次線圈分二段,置上、下兩鐵軛上。該系列電流互感器導磁材料采用經退火處理的環形鐵芯,以保證產品0.2或0.5級的精度;超導磁材料的應用使產品在同體積下能達到0.2S或0.5級,使產品能在一次電流1%-120%寬負荷下準確的計量電能、線圈經浸漆處理,有效防止了產品受潮一次為:P1、P2,二次為1S1,1S2;當一次電流由P1流向P2時,二次電流由S1經外部回路流向S2即為減極性。
無一次母線,變不附供固定母線的裝置。鐵心由夾件緊固,夾件上附有一次極性標記,二次出線端子,名牌及接地螺栓還有供安裝固定的孔。
本產品可是以制成濕熱型,在其金名牌的型號后加上“TH”字樣。
1海拔高度不超過1000米。
2周圍環境溫度不高于+40攝氏度,不低于-5攝氏度。
3周圍空氣的相對濕度不大于85%(20攝氏度)。
4安裝場所無嚴重影響互感器絕緣的氣體,蒸氣,化學沉積,污穢及其它爆炸性和腐蝕性介質。
| 型號 | 額定電流比 | 最高工作電壓(V) |
| LYM-0.5 | 750/5 | 500 |
| 1000/5 | ||
| 1500/5 | ||
| 2000/5 | ||
| 3000/5 | ||
| 4000/5 | ||
| 5000/5 | ||
| 7500/5 | ||
| 15000/5 | ||
| 20000/5 | ||
| 25000/5 | ||
| 30000/5 | ||
| 40000/5 |
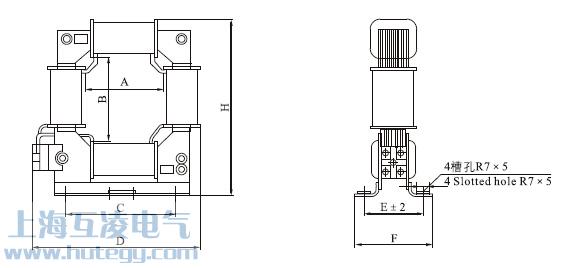
LYM-0.5電流互感器外形尺寸圖一:

LYM-0.5 75/5 -5000/5的尺寸圖
LYM-0.5電流互感器外形尺寸圖二:

LYM-0.5 7500/5-15000/5的尺寸圖
LYM-0.5電流互感器外形尺寸圖三:

LYM-0.5 20000/5 -3000/5的尺寸圖
| IIN(A) | A | B | C | D | E | F | H | h |
| 750-4000 | 102 | 102 | 155 | 230 | 85 | 120 | 255 | |
| 5000 | 140 | 140 | 195 | 295 | 102 | 155 | 305 | |
| 7500-10000 | 120 | 250 | 230 | 360 | 100 | 140 | 360 | 80 |
| 15000 | 120 | 350 | 280 | 360 | 100 | 155 | 470 | 80 |
| 20000 | 210 | 450 | 350 | 410 | 90 | 150 | 610 | 120 |
| 25000 | 200 | 600 | 430 | 480 | 110 | 150 | 760 | 120 |
| 30000 | 260 | 600 | 430 | 540 | 130 | 150 | 760 | 120 |
| 40000 | 260 | 600 | 450 | 550 | 140 | 170 | 785 | 120 |


一次側:P1(L1,K)進,P2(L2,L)出,二次外部回路S1(K1)出,S2(K2)入。
也可以反著接線,就是一次側:P2(L2,L)進,P1(L1,K)出,二次外部回路S2(K2)出,S1(K1)入。
特別提醒:當一次有電流通過時,二次回路不得開路否則有高壓產生。